Transformer les lieux pour accompagner les mutations humaines et collectives.

Le Souffle du Vie-Vent accompagne les entreprises, associations et collectifs dans leurs phases de transition, lorsqu’un lieu ne reflète plus l’organisation vivante qu’il abrite.

Un lieu n’est jamais neutre. Il influence les façons de travailler, de coopérer, de se structurer. Et inversement, toute évolution humaine ou organisationnelle appelle une transformation spatiale en résonance.

Le Souffle du Vie-Vent intervient à ces moments charnières – parfois flous, souvent complexes (fusion d’équipes, croissance, réorganisation, transformation de gouvernance, bâti contraint ou ancien) – pour clarifier, structurer et incarner le changement, à travers des missions de programmation architecturale sensible et de maîtrise d’œuvre complète.

L'approche


L’accompagnement proposé est à la fois concret, sensible et structurant. Il s’adresse aux organisations qui souhaitent incarner leur transformation dans un lieu cohérent, porteur de sens et en lien avec leur dynamique humaine.

 

  • Une mission complète d’architecture
    Le Souffle du Vie-Vent prend en charge l’ensemble du projet, de la programmation à la maîtrise d’œuvre, depuis l’esquisse jusqu’au suivi de chantier. Chaque phase est menée dans une logique de cohérence globale.

  • Une démarche participative dans un cadre soutenant
    Le projet devient une aventure humaine portée collectivement. Il reflète la raison d’être du groupe, ses valeurs, ses relations et ses aspirations profondes.

Exemple de schéma de présentation de l'implication des acteurs

  • Une expertise transversale
    L’approche conjugue savoir-faire techniques, écoute sensible du groupe et lecture subtile du lieu. Elle permet d’aller au-delà des seules réponses fonctionnelles.
  • Des supports visuels et pédagogiques
    Des outils clairs, engageants et adaptables permettent de représenter les possibles, de faciliter la compréhension collective et de nourrir la décision.
    • (Exemple : facilitation graphique, cartographies sensibles, scénarios illustrés…)

    Exemple de facilitation graphique pour la prise de conscience du processus de projet par le collectif

    • Une conduite de projet fluide et sécurisante
      Chaque mission est accompagnée d’un cadre structuré et transparent (planning, échéances, livrables) afin que la créativité collective puisse s’exprimer sereinement.

    Le projet de transformation d’un lieu incarne les mutations invisibles de l’organisation. Il devient le miroir sensible d’un renouveau intérieur. 

    Références


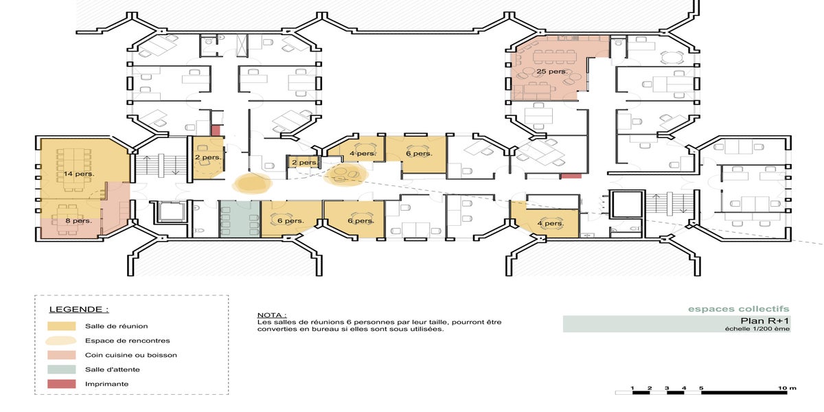
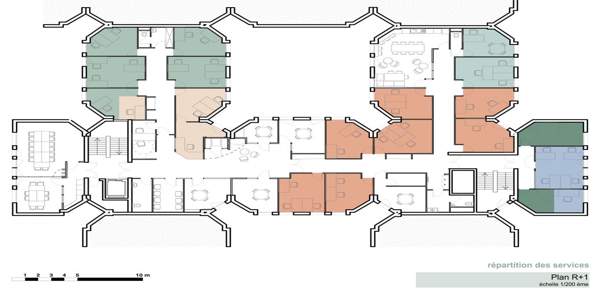
    Rénovation et agrandissement de bureaux en processus concerté


    Maître d'ouvrage : Association Un Toit pour Tous * Lieu : Echirolles (38) * Année de réalisation : 2025-2026 * Surface : 715 m²

    Aménagement d'une ancienne grange en accueil de jour et collocation pour adultes en situation de handicap


    Maître d'ouvrage : Le Bercail Paysan * Lieu : Gillonay (38) * Année de réalisation : 2024-2025 * Surface : 342 m²

    Architecte conseil


    Commanditaire : Communauté de communes Cœur de Chartreuse en association avec le CAUE de l'Isère et de Savoie

    Communes : Saint-Pierre d'Entremont (38), Saint-Pierre d'Entremont (73), Corbel, Entremont le Vieux, La Bauche, Les Echelles, Saint-Christophe-la-Grotte, Saint-Franc, Saint-Jean-de-Couz, Saint-Pierre-de-Genebroz, Saint-Thibaud-de-Couz

    Depuis 2018

    Études pour la transformation d'un ancien pressoir en habitation et local annexe d'activité agricole


    Maître d'ouvrage : Client privé * Lieu : Poncieux (01) * Année d'études : 2023 * Surface : 150 m²

    Envie d'en savoir plus ?